Property Description
Off-Plan 4-Bedroom Sea View Villas Just 1km to Cheong Mon Beach, Koh Samui
These well-priced sea view villas in Koh Samui offer a fantastic opportunity to own a spacious and modern home in a prime location. Just 1 kilometer from the stunning Cheong Mon Beach, these off-plan 4-bedroom, 4.5-bathroom villas are designed for comfort, practicality, and island living.
Ownership structure notes: This villa building is owned freehold, land ownership is 30 year leasehold with additional negotiable 30 year term possibility. There are annual lease payments of 84,000 THB due per year due starting March 2029 and paid over the remaining 25 years of the 30 year lease.
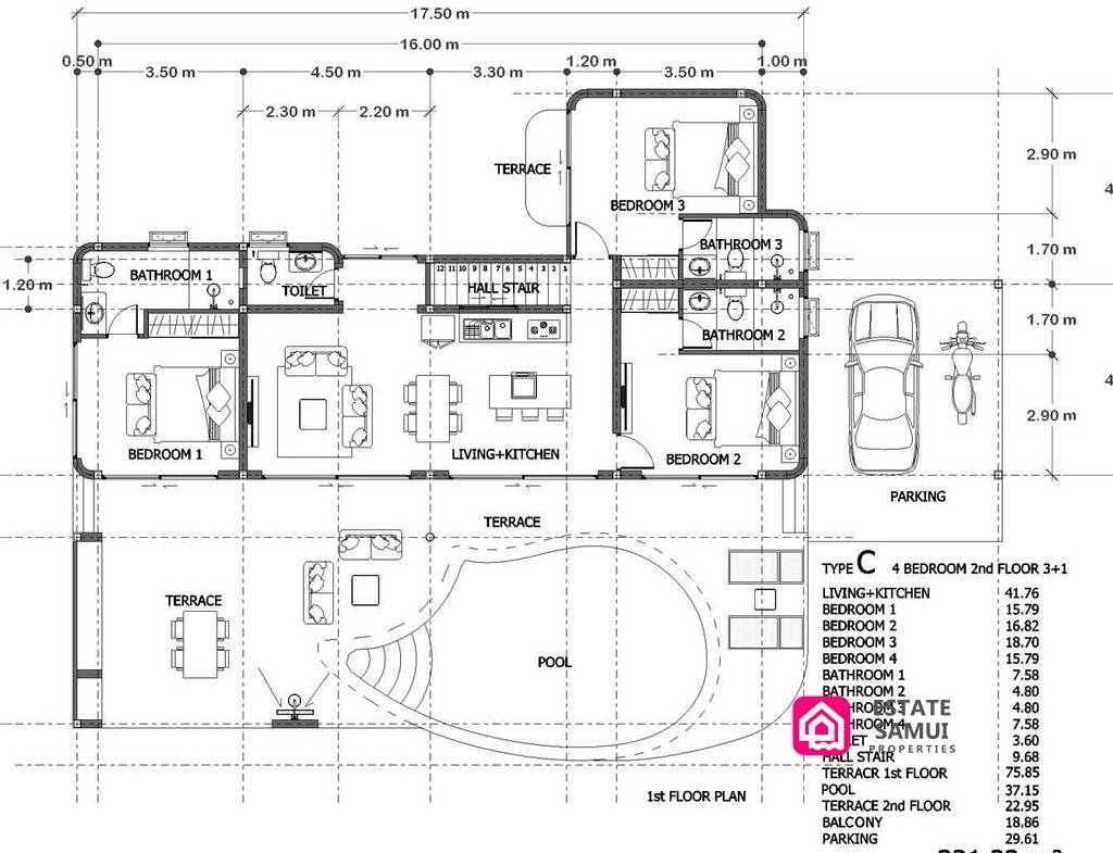
Built over two levels, the lower floor features an open-plan living area with a fully equipped Western kitchen, seamlessly connecting to the private pool and garden. The 37 sqm pool area includes a beautiful covered social space, perfect for relaxing or entertaining. Three ensuite bedrooms and a guest WC complete this level.
On the upper floor, the master suite enjoys open sea views, a private bathroom, and a spacious balcony, offering a perfect spot to take in the tropical surroundings. With a built area of 331 sqm on land plots ranging from 534 to 579 sqm, these villas provide plenty of space for comfortable living.
Key Features
- š Well-priced sea view villas with 4 bedrooms and 4.5 bathrooms
- š“ Two-level layout with spacious interiors
- š Distant sea views from the pool level, open sea views from the master suite
- šāāļø 37 sqm private pool with a covered outdoor social area
- š 331 sqm built area on land plots of 534ā579 sqm
- š³ Full Western kitchen and air-conditioning included
- š Just 1 km from beautiful Cheong Mon Beach
These affordable villas offer a great mix of space, quality, and a prime Koh Samui locationāideal for homeowners and investors alike.
Property Surroundings
Set in the serene Plai Laem area of Koh Samui, these well-priced sea view villas offer the perfect balance of relaxation and convenience. Just 1 kilometer from Cheong Mon Beach, residents can take a short 10-minute stroll to its calm, family-friendly watersāideal for swimming and unwinding.
For a livelier atmosphere, Bangrak Beach is only 1.8 kilometers away. This vibrant area features beachside cafes, laid-back bars, and trendy clubs. If youāre looking for nightlife and a variety of dining options, Chaweng Beach is just 5 kilometers away, making it easy to enjoy Koh Samuiās energetic side.
With a prime location, these villas provide quick access to some of the islandās best beaches and attractions. Whether you prefer peaceful days by the sea or exciting nights out, this property offers the best of both worlds.
Map Location
-
Area: Plai Laem, North-East
Details
Updated on June 26, 2025 at 11:43 am-
Property ID DS5476
-
Price 12,990,000 THB
-
Property Size 331 m²
-
Land Area 576 m²
-
Bedrooms 4
-
Bathrooms 4.5
-
Property Type Villa / House
-
Property Status For Sale
-
View Type Sea View
Additional details
-
Communal Fees to Pay No
-
Pool 37sqm private pool
-
Electric Supply Government electric
-
Water Supply Deep well with filtration
-
Type of Ownership Building is owned freehold, land ownership is 30 year leasehold with additional negotiable 30 year term possibility. There are annual lease payments due starting 2029
-
Land Title Chanote
-
Accessibility Easy access, no hills