Maenam Pool Villa For Sale with Modern Design
- 11,000,000 THB
- 11,000,000 THB
Property Description
6-Bedroom Spacious Pool Villa with Modern Design and Pool View
Located in a quiet residential pocket of Maenam on Koh Samui’s serene north coast, this spacious 6-bedroom Maenam pool villa offers a rare blend of comfort, versatility, and tropical charm. Designed in an L-shape, the layout wraps around a central swimming pool, manicured garden, and Thai-style sala—ideal for relaxing or entertaining.
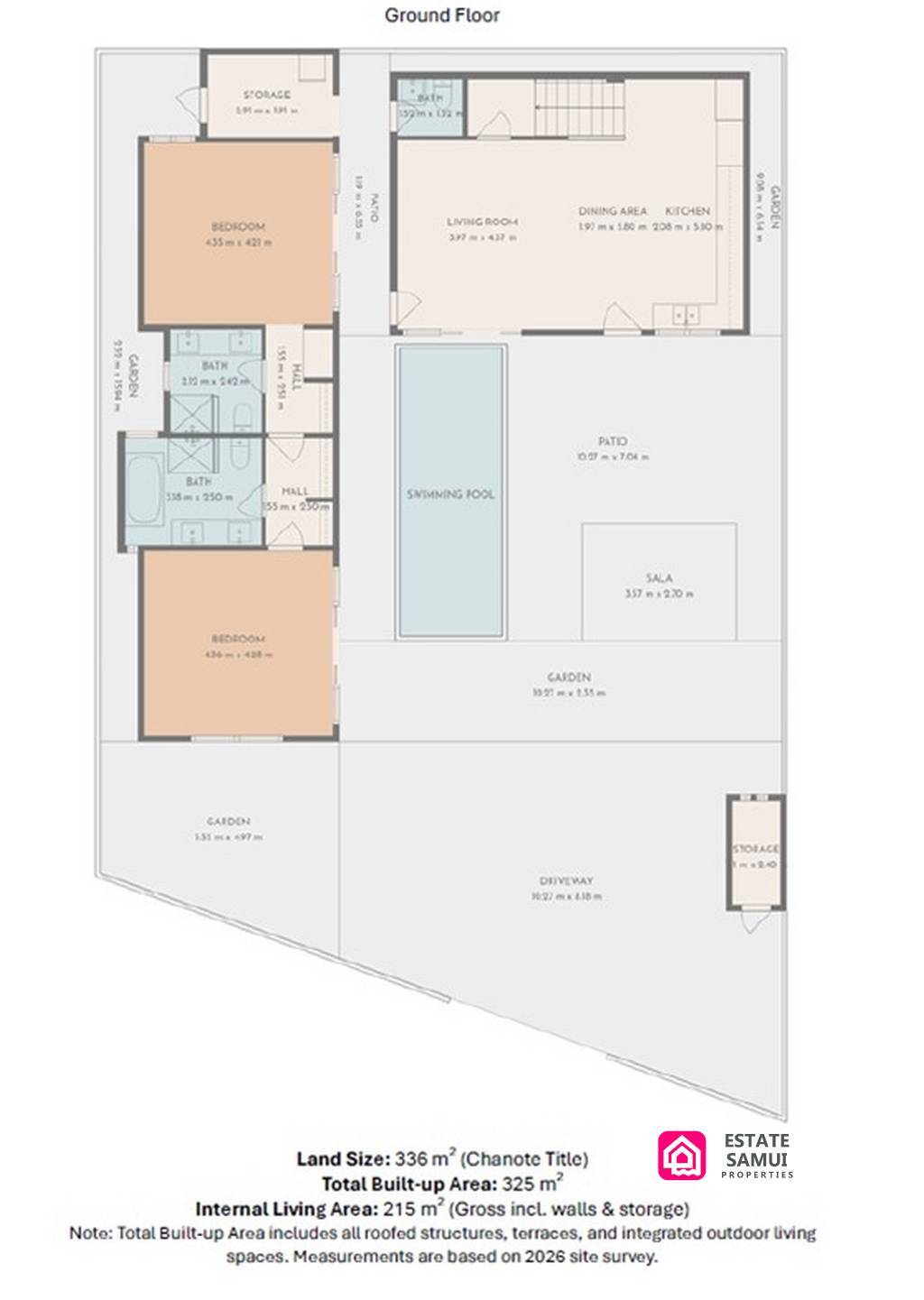
Floor Plans


This thoughtfully planned Koh Samui property is arranged across two separate buildings. The main structure features a bright, open-plan living and dining area with a fully equipped kitchen, opening directly onto the pool terrace. Upstairs, a large en-suite bedroom provides a private haven.
The second building adds incredible flexibility. It includes two en-suite double bedrooms with direct pool access, two single bedrooms with a shared bathroom, and another en-suite double upstairs—ideal for guests or extended family.
Also, the villa is just five minutes from Maenam Beach, shops, and restaurants, making it both peaceful and practical.
Key Features
- 🛏 6 bedrooms, 5.5 bathrooms
- 🏊♂️ Central private pool with terrace and Thai sala
- 🏠 Two connected buildings with upper terrace
- 🌿 336 sqm land | 325 sqm built-up | 215 sqm internal
- 🍽 Open-plan kitchen, dining, and lounge area
- 🚗 Electric gate, off-road parking, and walled grounds
- 📍 Located in peaceful Maenam, Koh Samui
- 🏡 Flat land with Chanote title deed
- 💡 Ideal for family living or long-term rental
A well-located and spacious Maenam pool villa offering the best of Koh Samui island living.
Property Surroundings
Positioned in Maenam on peaceful Koh Samui, this Maenam pool villa sits on the island’s scenic north coast, a calm area prized for its long sandy shoreline. The golden sands of Maenam Beach are only about a 5‑minute drive from the villa. This quiet stretch of coast extends for roughly 4 km and is ideal for swimming, leisurely beach walks, and sunset views across the Gulf of Thailand toward Koh Phangan.
Also close by, Bophut Beach and the charming Fisherman’s Village with restaurants and boutiques are around a 10‑minute drive east, making daily errands or dining out easy.
If you want more variety, Chaweng Beach and its lively nightlife and watersports scene lie approximately 15 minutes by car to the southeast. Likewise, Santiburi Samui Country Club and golf course are also nearby, giving you recreational options just minutes from home.
To get around Koh Samui, the island ring road connects Maenam to all major destinations. For example, the airport is about 20 minutes by car, while popular attractions like Big Buddha are within easy reach for day trips.
Because of this central yet serene placement, this Maenam pool villa balances quiet tropical living with accessibility to beaches, cafes, golf, and island activities on Koh Samui.
Map Location
-
Area: Maenam, North-East
Details
Updated on February 10, 2026 at 8:04 am-
Property ID VS5757
-
Price 11,000,000 THB
-
Property Size 325 m²
-
Land Area 336 m²
-
Bedrooms 6
-
Bathrooms 5
-
Property Type Villa / House
-
Property Status For Sale
-
View Type Pool View
Additional details
-
Pool Private
-
Type of Ownership Freehold
-
Land Title Chanote
-
Accessibility Easy Access